Увійти

  • Рівень проекту
    На оренду
  • Стилістика
    Сучасний
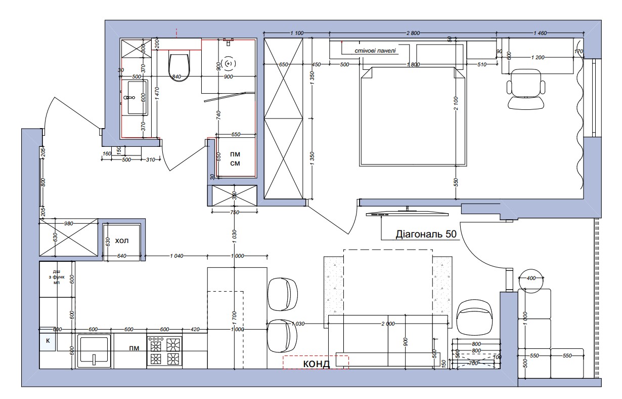
  • 47 м. кв.

Стиль: Сучасний мінімалізм
Колірна гамма: Біло-сіра з дерев’яними акцентами, чорні деталі
Матеріали: Фарбовані фасади, бетонні панелі, плитка під сірий камінь, меблі під дерево
Функціональні зони

🔹 Кухня-вітальня (відкрита зона)

Кухня: біло-сірі фарбовані фасади з інтегрованими ручками, чорна стільниця.
Барна стійка як розділення між кухнею та вітальнею.
Вітальня: бірюзовий диван, телевізор на стіні, робоче місце біля вікна.

🔹 Спальня

Відтінки сіро-білі + акцентні панелі під бетон за узголів’ям ліжка.
Шафа-купе з матовими фасадами.
Ліжко з м’яким текстильним узголів’ям, підсвічення для затишку.

🔹 Санвузол

Плитка під сірий камінь, душова зона зі скляною перегородкою.
Вбудована ніша з пральною та сушильною машинами.
Мінімалістична біла тумба, змішувачі чорного кольору.

Загальна концепція

Функціональний сучасний простір із лаконічним оформленням. Поєднання бетонної текстури,
сірого каменю та дерева створює стильний інтер’єр із теплими акцентами. Чорні деталі
додають контрасту, а освітлення підкреслює глибину кольорів.

Особливості Проекту

Додаткові Послуги

  • Адаптація креслень Проекту

    Розробник Проекту виїжджає до замовника і проводить необхідні обміри, адаптує технічну документацію купленого Замовником Проекту відповідно до актуальних обмірів

    10 000 грн.
  • Внесення поправок у всі Візуалізації

    Розробник Проекту проводить допрацювання візуалізації згідно побажань замовника

    20 000 грн.
  • Внесення поправок у візуалізації кухні

    Замовник описує свої вимоги до дизайну конкретного приміщення, а візуалізатор вносить відповідні поправки і надає результат у вигляді 4 візуалізацій

    5 000 грн.
  • Внесення поправок у візуалізації вітальні

    Замовник описує свої вимоги до дизайну конкретного приміщення, а візуалізатор вносить відповідні поправки і надає результат у вигляді 4 візуалізацій

    5 000 грн.
  • Внесення поправок у візуалізації санвузлів

    Замовник описує свої вимоги до дизайну конкретного приміщення, а візуалізатор вносить відповідні поправки і надає результат у вигляді 4 візуалізацій

    5 000 грн.
  • Внесення поправок у візуалізації спальні

    Замовник описує свої вимоги до дизайну конкретного приміщення, а візуалізатор вносить відповідні поправки і надає результат у вигляді 4 візуалізацій

    5 000 грн.
  • Внесення поправок у візуалізації одного приміщення

    Замовник описує свої вимоги до дизайну конкретного приміщення, а візуалізатор вносить відповідні поправки і надає результат у вигляді 4 візуалізацій

    5 000 грн.
  • Актуалізація кошторисів

    Виконавець Проекту проводить актуалізацію кошторису з цінами на оздоблювальні матеріали та меблі на день купівлі проекту.

    2 000 грн.
  • Роздрук одного екземпляру проекту та надсилання замовнику на відділення нової пошти

    Виконавець проекту проводить роздрук 1 екземпляру креслень, візуалізації, кошторисів, якщо вони входили у проект та надсилає замовнику на вказану адресу.

    Безкоштовно

Локація

Лише користувачі, які придбали Проект, можуть залишити відгук.

Придбання

Квитки 1
Квитки
Додаткові послуги 0
Маєте купон?
Цей купон було додано
Увійдіть, щоб Купити
Вартість 9400 грн.