Увійти

  • Рівень проекту
    Середній
  • Стилістика
    Сучасний
  • 67 м. кв.

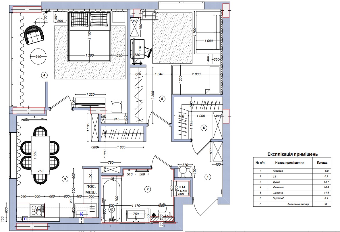
Загальна площа: 66 м²
Стиль інтер’єру: Сучасний мінімалізм із елементами скандинавського дизайну
Колірна палітра: Нейтральні та теплі відтінки бежевого, сірого та дерева, акценти в чорному та жовтому кольорах
Кухня

Використано поєднання темних і дерев’яних фасадів кухонних меблів, що додає затишку та природності.
Мармуровий фартух і світла стільниця підкреслюють сучасний стиль та надають розкішного вигляду.
Обідня зона гармонійно інтегрована в простір – прямокутний дерев’яний стіл із шкіряними та тканинними стільцями,
над яким розташована оригінальна чорна люстра.
Вбудована побутова техніка та продумана система зберігання забезпечують функціональність.

Спальня

Ліжко з м’яким узголів’ям, що додає затишку та комфорту.
Декоративний круглий елемент на стіні біля узголів’я створює акцент у приміщенні.
Жовте крісло та пуф як яскравий акцент додають динаміки та теплоти кімнаті.
Велике вікно із легкими шторами забезпечує гарне природне освітлення.

Гардеробна

Окрема закрита гардеробна кімната із дерев’яними полицями, металевими каркасами для зберігання одягу та
аксесуарів.
Використання теплого підсвічування для зручності та естетики.

Дитяча кімната

Ліжко-будиночок зі світловою гірляндою додає казковості та затишку.
Пастельна колірна гама (блакитний, сірий, жовтий) створює сприятливу атмосферу для дитини.
Функціональна зона для ігор і навчання: робочий стіл, полиці для книг та іграшок, розвивальні елементи.

Санвузол

Використано світлу плитку з текстурою каменю у поєднанні з фактурною плиткою.
Велике дзеркало з LED-підсвіткою візуально розширює простір.
Сучасна сантехніка: підвісний унітаз, містка тумба під умивальник, ванна із душовою зоною.

Коридор

Функціональна зона для зберігання: шафа для одягу, дзеркало в повний зріст.
Тумба для взуття з вішаками над нею та вбудоване підсвічування додають стилю та затишку.

Загальні особливості проєкту

✔ Використання натуральних матеріалів (дерево, мармур, текстиль).
✔ Продумане зонування для комфорту проживання.
✔ Функціональні меблі з прихованими системами зберігання.
✔ Гармонійне поєднання світлих та темних акцентів для створення балансу в інтер’єрі.

Цей інтер’єр створений для тих, хто цінує комфорт, стиль та функціональність у кожній деталі!

Особливості Проекту

Додаткові Послуги

  • Адаптація креслень Проекту

    Розробник Проекту виїжджає до замовника і проводить необхідні обміри, адаптує технічну документацію купленого Замовником Проекту відповідно до актуальних обмірів

    10 000 грн.
  • Внесення поправок у всі Візуалізації

    Розробник Проекту проводить допрацювання візуалізації згідно побажань замовника

    15 000 грн.
  • Внесення поправок у візуалізації кухні

    Замовник описує свої вимоги до дизайну конкретного приміщення, а візуалізатор вносить відповідні поправки і надає результат у вигляді 4 візуалізацій

    5 000 грн.
  • Внесення поправок у візуалізації вітальні

    Замовник описує свої вимоги до дизайну конкретного приміщення, а візуалізатор вносить відповідні поправки і надає результат у вигляді 4 візуалізацій

    5 000 грн.
  • Внесення поправок у візуалізації санвузлів

    Замовник описує свої вимоги до дизайну конкретного приміщення, а візуалізатор вносить відповідні поправки і надає результат у вигляді 4 візуалізацій

    5 000 грн.
  • Внесення поправок у візуалізації спальні

    Замовник описує свої вимоги до дизайну конкретного приміщення, а візуалізатор вносить відповідні поправки і надає результат у вигляді 4 візуалізацій

    5 000 грн.
  • Внесення поправок у візуалізації одного приміщення

    Замовник описує свої вимоги до дизайну конкретного приміщення, а візуалізатор вносить відповідні поправки і надає результат у вигляді 4 візуалізацій

    5 000 грн.
  • Актуалізація кошторисів

    Виконавець Проекту проводить актуалізацію кошторису з цінами на оздоблювальні матеріали та меблі на день купівлі проекту.

    2 000 грн.
  • Роздрук одного екземпляру проекту та надсилання замовнику на відділення нової пошти

    Виконавець проекту проводить роздрук 1 екземпляру креслень, візуалізації, кошторисів, якщо вони входили у проект та надсилає замовнику на вказану адресу.

    Безкоштовно

Локація

Лише користувачі, які придбали Проект, можуть залишити відгук.

Придбання

Квитки 1
Квитки
Додаткові послуги 0
Маєте купон?
Цей купон було додано
Увійдіть, щоб Купити
Вартість 13400 грн.