Увійти

  • Рівень проекту
    Високий
  • Стилістика
    Лофт
  • 103 м. кв.

Інтер’єр двокімнатної квартири виконаний у сучасному стилі з елементами лофту та мінімалізму. Основними
матеріалами стали дерево, метал і скло, що надають простору затишку та елегантності. Колірна гама представлена
природними відтінками – сірий, чорний, коричневий, а також акцентами теплого дерева та зелені.
Головні зони квартири
1. Вхідна зона

Стилістично оформлена в темних тонах із дерев’яними елементами.
Вбудовані шафи для зберігання одягу та аксесуарів.
Дзеркала в повний ріст візуально розширюють простір.
“Жива” зелена стіна додає природності та свіжості в інтер’єр.

2. Вітальня-кухня

Простір об’єднано у форматі open space, що створює ефектність і функціональність.

Кухня: Виконана у темних відтінках із дерев’яними фасадами та стильною чорною технікою. Відкрите планування
забезпечує зручність використання.
Обідня зона: Круглий стіл із сучасними стільцями гармонійно інтегрований у простір.
Зона відпочинку: Великий чорний шкіряний диван додає лофтового настрою. Акцентні полиці з декором і
фотографіями створюють атмосферу домашнього затишку.
Оформлення стелі: Ламелі темного кольору додають стильного вигляду та гармонійно поєднуються з іншими елементами.

3. Спальня

Спокійний і стильний простір для відпочинку.

Ліжко з м’яким узголів’ям у теплих відтінках.
Декор стіни за ліжком у вигляді великого художнього панно з міським пейзажем.
Дерев’яна шафа із прихованими ручками для збереження лаконічності.
Зона відпочинку біля вікна з кріслом і невеликим столиком.

4. Кабінет

Функціональний простір, що поєднує робочу та відпочинкову зону.

Робоче місце: Великий стіл, зручне ергономічне крісло.
Шкіряний диван у вінтажному стилі додає атмосферу чоловічого кабінету.
Настінні полиці з декоративним підсвічуванням забезпечують зручне зберігання книг та аксесуарів.

5. Ванна кімната

Оформлена у темних тонах з використанням мармуру та дерева.
Вбудоване освітлення по периметру стелі додає атмосферності.
Підвісна тумба з дерева додає тепла та природності.
Душова зона та ванна поєднані в одному просторі.

Другий санвузол оформлений у темно-сірій плитці з декоративною мозаїкою, має компактну тумбу з раковиною.
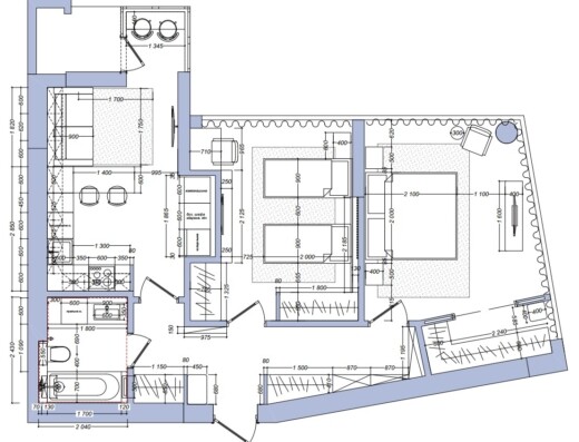
Планування

Згідно з планом, квартира має дві окремі кімнати, простору вітальню-кухню, дві ванні кімнати та функціональну
вхідну зону. Раціональне використання площі та відкриті простори роблять інтер’єр стильним і комфортним для життя.

Дизайн-проєкт двокімнатної квартири поєднує в собі функціональність, стиль і затишок. Використання темних кольорів,
дерева та металевих акцентів створює гармонійний простір, що підходить як для активного способу життя, так і для
комфортного відпочинку.

Особливості Проекту

Додаткові Послуги

  • Адаптація креслень Проекту

    Розробник Проекту виїжджає до замовника і проводить необхідні обміри, адаптує технічну документацію купленого Замовником Проекту відповідно до актуальних обмірів

    10 000 грн.
  • Внесення поправок у всі Візуалізації

    Розробник Проекту проводить допрацювання візуалізації згідно побажань замовника

    15 000 грн.
  • Внесення поправок у візуалізації кухні

    Замовник описує свої вимоги до дизайну конкретного приміщення, а візуалізатор вносить відповідні поправки і надає результат у вигляді 4 візуалізацій

    5 000 грн.
  • Внесення поправок у візуалізації вітальні

    Замовник описує свої вимоги до дизайну конкретного приміщення, а візуалізатор вносить відповідні поправки і надає результат у вигляді 4 візуалізацій

    5 000 грн.
  • Внесення поправок у візуалізації санвузлів

    Замовник описує свої вимоги до дизайну конкретного приміщення, а візуалізатор вносить відповідні поправки і надає результат у вигляді 4 візуалізацій

    5 000 грн.
  • Внесення поправок у візуалізації спальні

    Замовник описує свої вимоги до дизайну конкретного приміщення, а візуалізатор вносить відповідні поправки і надає результат у вигляді 4 візуалізацій

    5 000 грн.
  • Внесення поправок у візуалізації одного приміщення

    Замовник описує свої вимоги до дизайну конкретного приміщення, а візуалізатор вносить відповідні поправки і надає результат у вигляді 4 візуалізацій

    5 000 грн.
  • Актуалізація кошторисів

    Виконавець Проекту проводить актуалізацію кошторису з цінами на оздоблювальні матеріали та меблі на день купівлі проекту.

    2 000 грн.
  • Роздрук одного екземпляру проекту та надсилання замовнику на відділення нової пошти

    Виконавець проекту проводить роздрук 1 екземпляру креслень, візуалізації, кошторисів, якщо вони входили у проект та надсилає замовнику на вказану адресу.

    Безкоштовно

Локація

Лише користувачі, які придбали Проект, можуть залишити відгук.

Придбання

Квитки 1
Квитки
Додаткові послуги 0
Маєте купон?
Цей купон було додано
Увійдіть, щоб Купити
Вартість 20600 грн.

Автор Design Solutions

Design Solutions