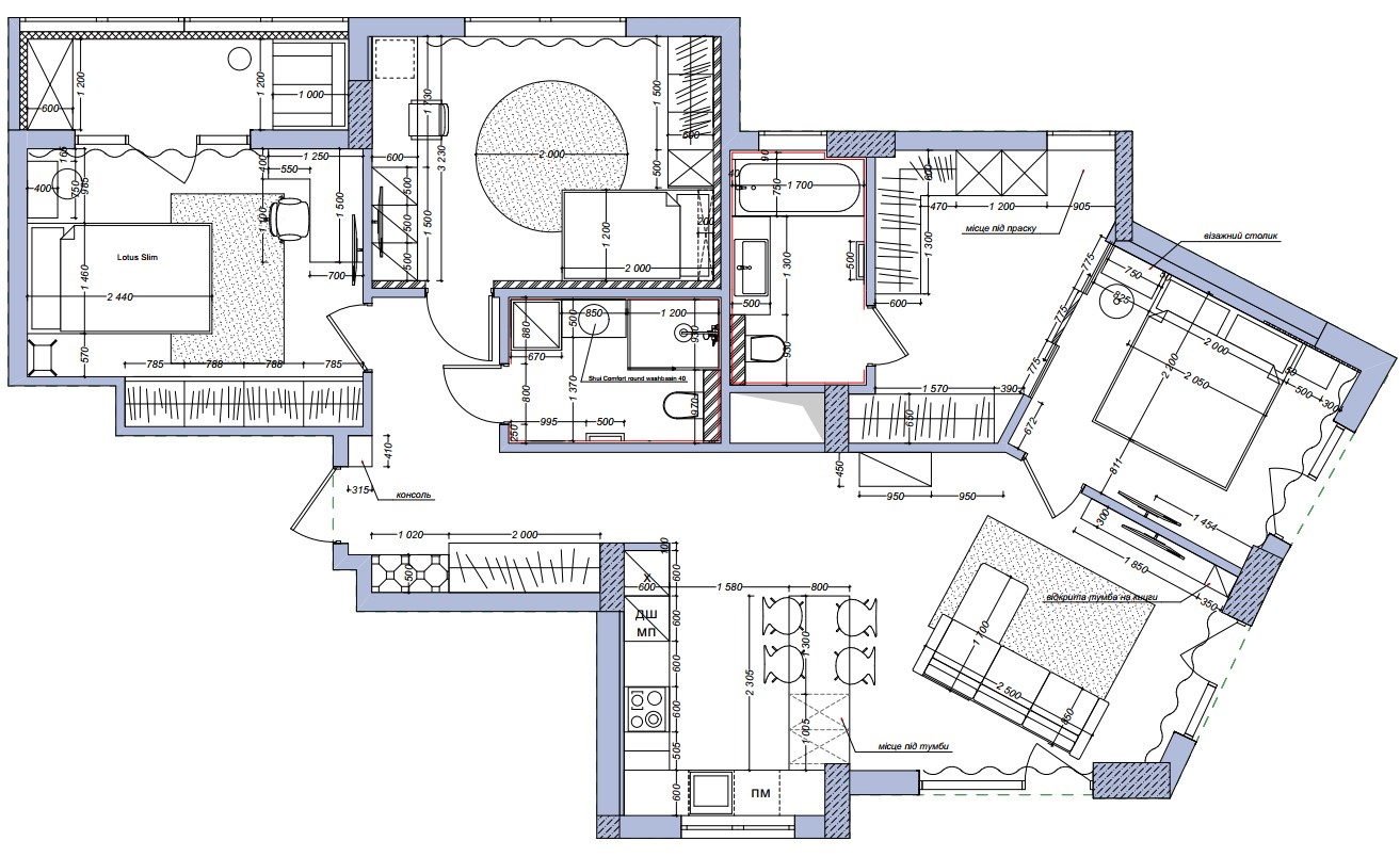
Загальна концепція
Цей інтер’єр відзначається сучасним мінімалізмом із теплими природними відтінками та текстурами.
Поєднання дерева, світлих тонів та чорних акцентів створює стильний і затишний простір. Використання
текстильних елементів, декоративного освітлення та дзеркальних поверхонь додає інтер’єру глибини та елегантності.
Кухня
Кухня виконана в сучасному стилі з використанням натуральних матеріалів. Верхні шафи світлого відтінку гармонійно
поєднуються з дерев’яними фасадами та темною стільницею. Центральним елементом є кухонний острів із барними
стільцями з м’якою оббивкою. Освітлення у вигляді підвісних світильників з теплим світлом додає простору
атмосферності. Вбудована техніка забезпечує зручність та функціональність.
Вітальня
Вітальня поєднується з кухнею, створюючи просторий open-space. М’який світлий диван з декоративними подушками
слугує центром зони відпочинку. Поруч розташований стильний кавовий столик і графічне панно на стіні, яке додає
індивідуальності інтер’єру. Оригінальне освітлення у вигляді підвісних ламп та LED-підсвітки створює затишну
атмосферу.
Спальня
Основна спальня виконана в темних, благородних тонах із акцентом на сучасний мінімалізм. Центральним елементом
є стильне ліжко з високим м’яким узголів’ям у графітовому кольорі. Стіну за узголів’ям прикрашають декоративні
панелі з текстурою бетону та вертикальними вставками, підсвіченими м’яким LED-освітленням, що додає глибини простору.
Гардеробна зона відокремлена стильними металевими перегородками з горизонтальними рейками, що створює ефект
легкості та сучасності. Над ліжком розташована оригінальна люстра у вигляді мінімалістичних кілець, що додає
простору футуристичного вигляду.
Біля ліжка облаштована затишна туалетна зона з консольним столиком, дзеркалом із LED-підсвіткою та стильним декором.
Поєднання текстурних матеріалів, м’якого освітлення та темної палітри кольорів створює атмосферу затишку, розкоші
та елегантності.
Дитяча кімната хлопчика
Дитяча оформлена у м’яких пастельних тонах із акцентами на текстильних іграшках та декоративних постерах.
Темно-синє узголів’я ліжка додає контрасту, а місткі шафи та відкриті полиці забезпечують зручне зберігання речей.
Вбудоване підсвічування полиць додає затишку, а світильники у мінімалістичному стилі забезпечують достатньо
освітлення.
Дитяча кімната дівчинки
Ця дитяча кімната виконана у ніжній рожево-бежевій палітрі, що створює атмосферу затишку та легкості.
Центральним елементом простору є комфортне м’яке ліжко в пудровому відтінку, розташоване біля стіни з
декоративними 3D-панелями, які додають текстурності та глибини.
Родзинкою інтер’єру є неоновий напис “Today is a good day”, що створює стильний акцент і надає кімнаті молодіжного
характеру. Дзеркальні вставки у шафах візуально розширюють простір і додають сучасної легкості.
Біля вікна розташована робоча зона з компактним письмовим столом і зручною сірою кріслом. Дизайнери вдало
поєднали функціональність та естетику: кімната має багато місця для зберігання завдяки містким шафам і тумбочкам,
а продумане освітлення забезпечує комфортне середовище для навчання та відпочинку.
Ванна кімната і душова
Ванна кімната оформлена у світло-бежевих та темно-сірих тонах із використанням натурального каменю та дерев’яних
текстур. Центральний акцент – велике дзеркало з LED-підсвіткою, яке додає простору глибини. Душова кімната із
прозорими перегородками виглядає легкою та сучасною, а контрастна чорна сантехніка додає інтер’єру стильного
характеру.
Балкон
Балкон слугує додатковою зоною відпочинку. М’який диван, декоративні подушки у чорно-білих тонах та стильні
картини створюють атмосферу затишку та релаксу. Панорамні вікна забезпечують багато природного світла, що робить
цю зону ідеальною для ранкової кави або читання книг.
Передпокій
Передпокій оформлений у світлих тонах із використанням дзеркальних фасадів, що візуально розширюють простір.
Дерев’яні панелі додають тепла, а приховане підсвічування створює ефект легкості. Вбудовані системи зберігання
дозволяють раціонально використовувати площу.
Висновок
Цей інтер’єр поєднує функціональність, комфорт і естетику. Натуральні матеріали, ретельно підібрана палітра
кольорів і продумане освітлення створюють простір, який відповідає сучасним тенденціям та підходить для комфортного
життя всієї родини.
Лише користувачі, які придбали Проект, можуть залишити відгук.